Aviation Metals

- Interior Architecture
- Charlotte, NC
- Renovation
- 8,204 SF

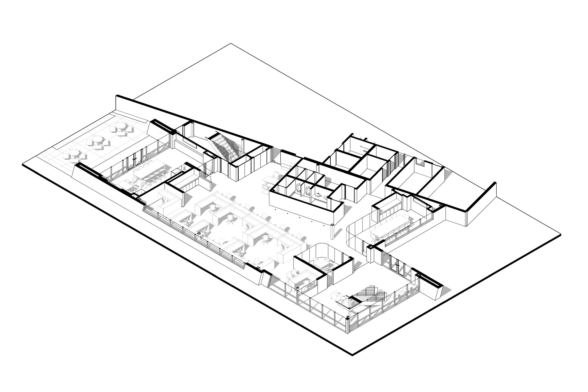
Aviation Metals is a contemporary corporate interior project designed to support collaboration, efficiency, and brand identity within a modern industrial environment. The space brings together open workstations, private offices, meeting rooms, and social areas, creating a balanced layout that adapts to different work dynamics.

The design focuses on clean lines, neutral tones, and high quality materials, enhanced by strategic lighting and custom architectural details. Brand identity is integrated through digital displays, graphic walls, and signage that reinforce the company’s aviation driven character. Natural light, acoustic considerations, and flexible spatial solutions contribute to a functional, comfortable, and visually cohesive workspace.

No items found.